Etusivu
Ostamme tontteja
Kohteemme
Muut palvelumme
Yhteystiedot
Myyty
Tikasniityntie 9 B, Espoo
Espoon Henttaalle, keskuspuiston syleilyyn valmistui kesällä 2022 kodit 2:lle perheelle.
Valmistumisvuosi :
06/2022
Asunnot :
1 paritalo, 2 asuntoa
Osoite :
Tikasniityntie 9 B, Espoo (Henttaa)
Sauna / kylpyhuone
Ruokailutila / olohuone
Keittiö
Pohjakuva Tikasniityntie 9 B 1
Pohjakuva Tikasniityntie 9 B 2
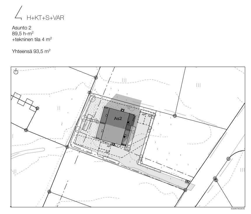
Asemapiirustus Tikasniityntie 9 B 2
TOP