Myyty

Parsatie 7, Vantaa

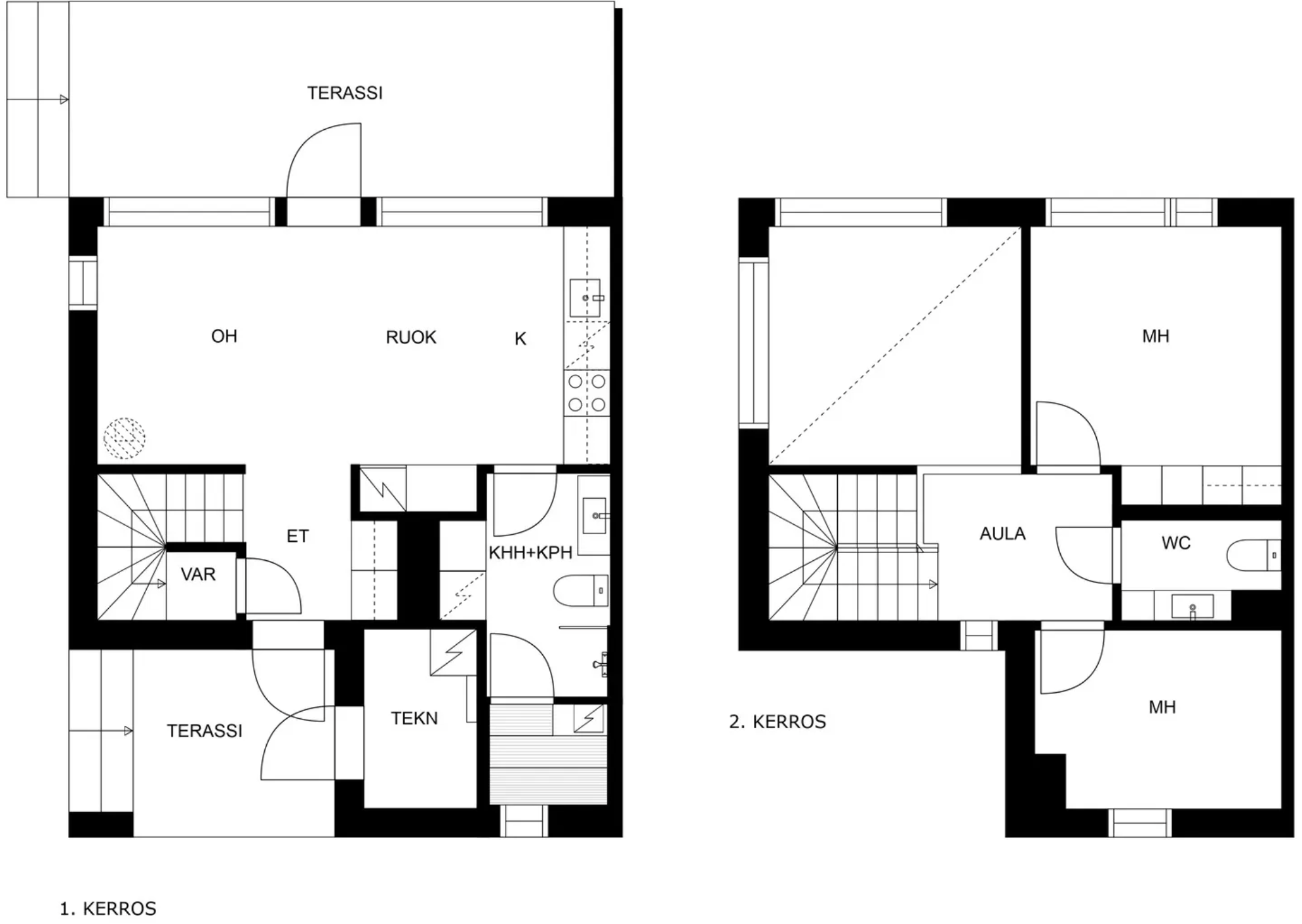
Toteutimme tämän paritalokohteen Vantaan Hiekkaharjun uudelle Tarhurinpuiston alueelle noin 600 metrin päähän Hiekkaharjun juna-asemasta. Molemmissa asunnoissa on kahden kerroksen korkuiset olohuoneet. Asunnoista pienempi on kahden ja suurempi kolmen makuuhuoneen koti. Omat kunnallistekniset liittymät, fiksu tilankäyttö, tekniset varaukset aurinkopaneeleille ja varautuminen sähköautoiluun ovat osa kokonaisuutta taaten mutkattoman ja järkevän asumisen pitkälle tulevaisuuteen. Lunastamme asiakaslupauksemme ”asuminen edellä” myös tässä kohteessa. Kohde on valmistunut marraskuussa 2023.

Lataa tästä kohteen Parsatie 7, Vantaa (Hiekkaharju) myyntiesite

  • Valmistumisvuosi : 11/2023
  • Asunnot : 1 paritalo, 2 asuntoa
  • Osoite : Parsatie 7, Vantaa (Hiekkaharju)
TOP