Myyty

Jyvätie 13, Vantaa

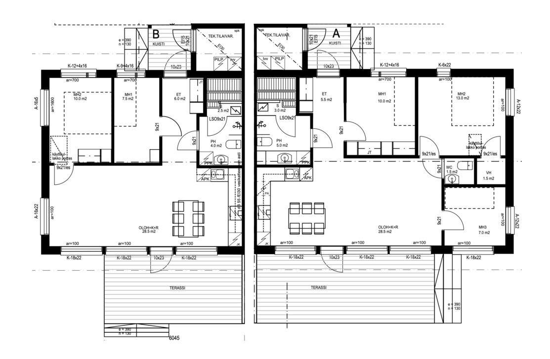
Maaliskuussa 2023 valmistunut soma paritalokohde Vantaan Jokiniemessä kilometrin päässä Hiekkaharjun juna-asemalta. Yksitasoiset asunnot olivat huoneistoalaltaan 60,5 h-m2 (3h) ja 78 h-m2 (4h). Lisäksi asunnoissa on tilavat varastoullakot. Toteutimme kohteeseen aurinkopaneelivaraukset ja varauduimme myös sähköautojen lataukseen.

  • Valmistumisvuosi : 03/2023
  • Asunnot : 1 paritalo, 2 asuntoa
  • Osoite : Jyvätie 13 A / Jyväpolku 4 B, Vantaa (Jokiniemi, Tikkurila)
TOP